Wow! Never thought I would say this but Landon Homes at the Fairways in Craig Ranch with Frisco ISD opened today starting at $299,990!!! I know it is only $10 but with the prices that I have seen on new home communities with Frisco ISD, this is a big deal!
In every new home community it is standard for the builder to start low and after 5 or 10 sales increase prices. Most of the time, it is hard to believe but the builder normally breaks even if not maybe a couple thousand dollars on the first couple homes. And Mr. John Landon is a “moneymaker” with knowledge and experience.
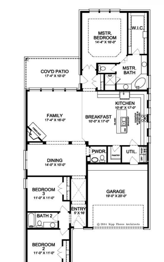
So at 299,000 for 2,124 square feet the Sunningdale Floorplan above will be a great fit for a buyer wanting a one story at an unbelievable price for Craig Ranch. The highest Landon will go is at 3,124 with the Aberdeen Floorplan at only $359,990. I’m sure you can add more structural options and the square footage would top out at 3,400 square feet.
My best guess on this community would be that they will sell 7 or 8 this weekend and rIse prices on Monday.
If you are interested in the Fairways at Craig Ranch by Landon or would like to discuss the plat map, incentives etc. text or call Brad Holden today at (469)733-2723.
“And don’t forget to ask Brad about his $6,500 rebate for his clients that purchase a Landon home at The Fairways this month to use for closing costs or additional upgrades!”
Brad Holden – Holden New Homes – Licensed Texas Real Estate Broker













