Modern Trends, Elegance, Class and Beauty, all come together in one of the most premier communities in Frisco – Shaddock Creek Estates

With one of the most beautifully designed models I have had the pleasure of walking in, it’s no wonder why Shaddock lives up to its prestigious reputation!
Currently, Shaddock Homes has 4 quick move ins available:

The 7413 Plan shown below, is ready for delivery in March:


This is the new Casita floor plan from Shaddock. 5 bed, 5 bath, 2 half baths, media room down, private casita suite, and courtyard with fireplace, make this 5,360 sq ft house a Mega-Retreat!



Take a look at that Master Shower for 2! This home is priced at $1,240,000, but my clients will no doubt get this incredible home closer to $1,050,000!
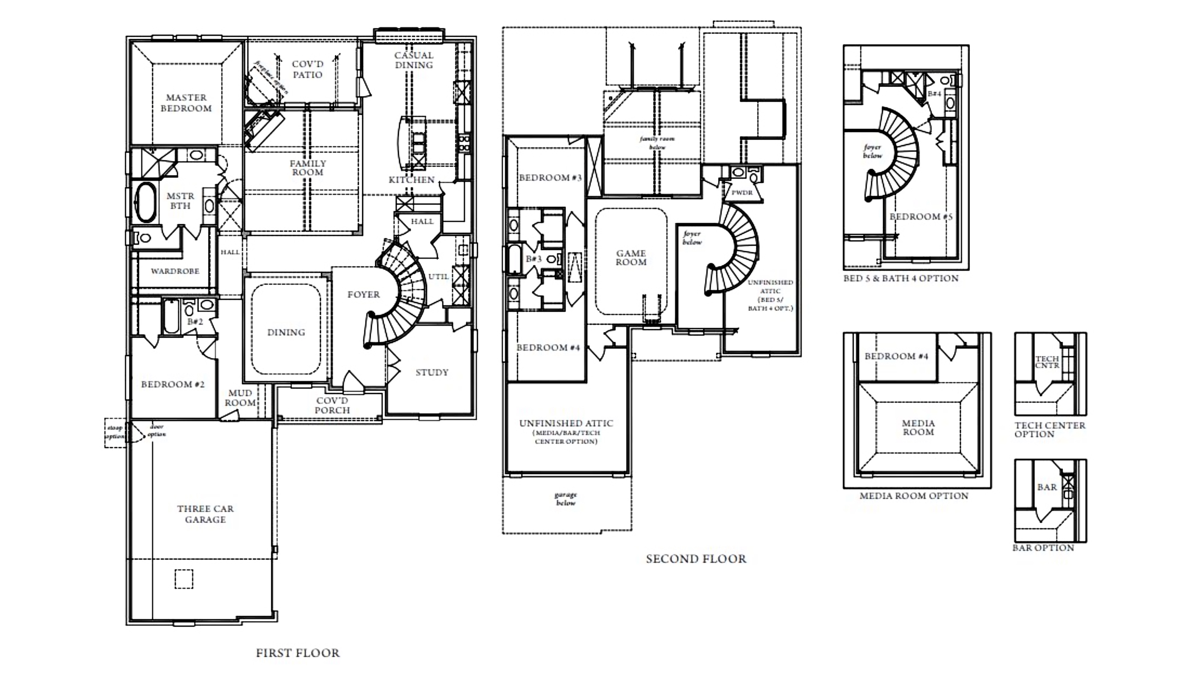
The next quick move in, known as the 7412 Plan, is available In April:



This gorgeous 5,882 sq ft plan, has expansive cathedral ceilings with wooden beams, raised study, and an outdoor entertainers dream with a patio fireplace. 5 beds, 5 baths, 3 powder baths, study, media, and game, priced at $1,180,000. My clients will get this amazing home for $1,031,762.
The 7410 Plan, shown below, will be ready for YOU in June! Just under 5000 sq ft, this 5 bed, 5.5 bath, Elegant French Tudor style estate, will have your neighbors jeoulous!



With an eye catching balcony off the two story family room, and a stunning spiral staircase in the front foyer, this $1,060,000 home could be yours for much closer to $939,998!
The Model’s Twin, also known as the 7230 Plan, is ready for you in June!


This 5,856 square foot estate, features 5 beds, 5.5 baths, game, media, two bed down, and sliding doors that open to a large covered patio with a cozy fireplace! If you are ready to set the standard on entertaining family and friends, the $1,120,713 price will be closer to $1,052,713.
Keep in mind that this perfectly located GATED community has 15 available lots for Shaddock Homes. If you are interested in building on one of those lots, stop by the model and see David. – Don’t forget to let him know Brad sent you!
For more information on Shaddock Homes at Shaddock Creek Estates in Frisco, TX, call or text me at (469) 733-2723.

BRAD HOLDEN – HOLDEN NEW HOMES – LICENSED TEXAS REAL ESTATE BROKER